Investiční příležitost bez starostí.
Prodej investičního bytu 1+kk v osobním vlastnictví v prvním patře víceúčelové budovy v blízkosti centra Brna. Byt je pronajat na dobu 3 let společnosti eFi Palace, s.r.o. (stávající vlastník, možnost prodloužení) s garantovaným nájemným 13 tisíc Kč měsíčně (156 tisíc Kč ročně).
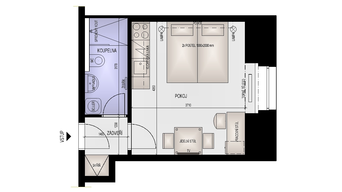
Celková výměra bytu je 23,53 m2. Předsíně 2,26 m2, koupelna 4,44 m2, pokoj s kuchyňským koutem 16,83 m2. Okna jsou situovány na severní stranu do ulice Bratislavská.
Vybavení bytu tvoří kuchyňský kout s kuchyňskou linkou v barvě Wenge a pracovní deskou Egger v barvě Jura černá se sklokeramickou varnou deskou Indesit VRM 640 MC se čtyřmi varnými zónami, komínový odsavač Elica Missy 60/IX, vestavěná mikrovlná trouba Baumatic BMC253SS s grilem a horkovzdušnou troubou, podstavná lednice indesit TFAA 10. V předsíni je vestavěná skříň. Koupelna se sprchovým koutem 90 x 90 cm, umyvadlem a WC, koupelnová skříňka LeBon, barva Wenge. Topení ústřední s radiátory, ohřev teplé vody elektrickým inteligentním ohřívačem OKHE SMART se zásobníkem teplé vody. Bytová okna jsou s izolačními trojskly.
| Cena: | 3 760 000 Kč |
| Poznámka: | neplatíte zprostředkovatelskou provizi |
| Číslo zakázky: | 19041 |
| Stav nabídky: | Aktivní |
| Poslední změna: | 5.12.2025 |
| Lokalita: | Brno, okr. Brno-město |
| Dispozice bytu | 1+kk |
| Číslo podlaží v domě | 2 |
| Počet podlaží v domě | 6 |
| Celková podlahová plocha | 24 |
| Druh objektu | cihlová |
| Stav objektu | dobrý |
| Energetická náročnost budovy | D |
| Měrná spotřeba energie (kWh/(m2*rok)) | 194 |
| PENB dle vyhlášky | |
| Vlastnictví | osobní |
| Umístění objektu | centrum obce |