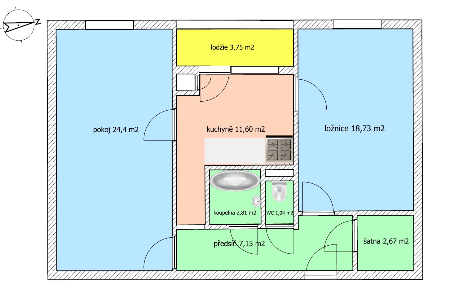
V Brně Řečkovicích nabízíme k prodeji bytovou jednotku 2+1 v osobním vlastnictví.
Byt se nachází ve třináctém patře a jeho okna a lodžie jsou orientovány na západní stranu bytového domu. Podlahová plocha bytu je 68,76 m2.
Jednotka je ve stavu ke kompletní rekonstrukci. Dům je zateplený a k dispozici je osobní i nákladní výtah. K bytu náleží také sklepní kóje. Před domem je k dispozici velké parkoviště a blízká dostupnost veškeré infrastruktury i výborné spojení městské hromadné dopravy.
| Cena: | 6 730 000 Kč |
| Poznámka: | včetně prostředkovatelské provize |
| Číslo zakázky: | 19044 |
| Stav nabídky: | Aktivní |
| Poslední změna: | 27.2.2026 |
| Lokalita: | Brno, okr. Brno-město |
| Dispozice bytu | 2+1 |
| Číslo podlaží v domě | 13 |
| Počet podlaží v domě | 13 |
| Celková podlahová plocha | 74 |
| Druh objektu | panelová |
| Stav objektu | dobrý |
| Energetická náročnost budovy | G |
| PENB dle vyhlášky | |
| Vlastnictví | osobní |
| Umístění objektu | klidná část obce |